Capannone in Vendita a Roseto degli Abruzzi
Zona: Santa Lucia
1.350 mq
Classe energetica
G
Porzione di fabbricato commerciale
posizionato su Strada statale, fronte ampio parcheggio pubblico e a 1.500 mt. da uscita autostradale
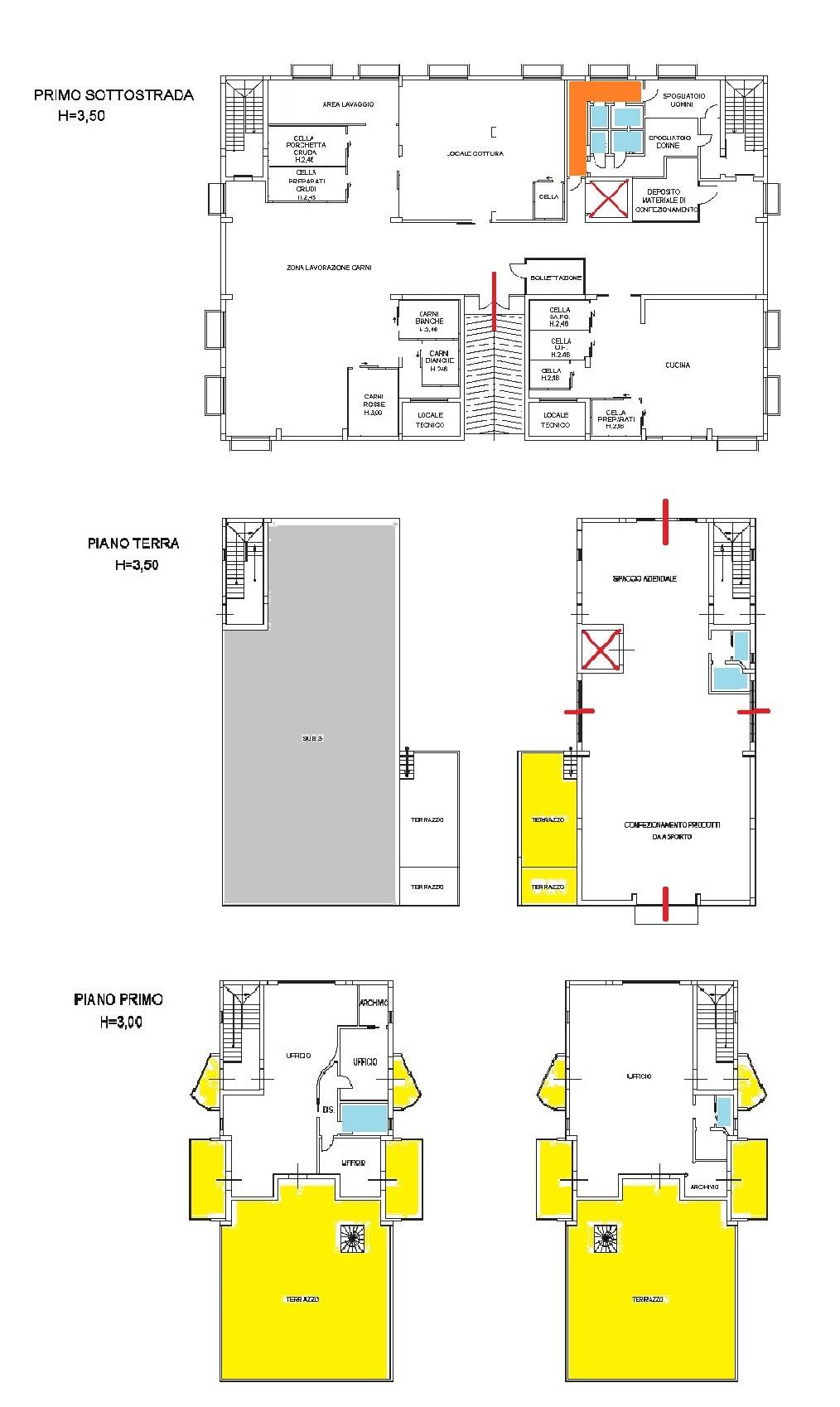
già adibito ad attività di ristorazione e costruito nel 2006 in c.a. e laterizi
costituito da locale commerciale al piano terra di 280 mq., due uffici al primo piano di totali 270 mq. e locale produttivo al piano seminterrato di 800 mq. con altezza interna di 350 cm. con accesso carrabile, cucine e celle frigo
impianto di sollevamento con montacarichi
impianto di riscaldamento
impianto di raffrescamento
impianto antincendio
area esterna di 885 mq.
immobile in portafoglio di istituto di credito
Informazioni immobile
Codice: 3640-1
Contratto: Vendita
Tipologia: Capannone
Regione: Abruzzo
Provincia: Teramo
Comune: Roseto degli Abruzzi
Zona: Santa Lucia
Prezzo: € 400.000
Totale mq: 1.350 mq
Stato conservazione: Buono
Caratteristiche
Antincendio
Area esterna: 885 m²
Recinzione: muratura ed elementi in acciaio
Montacarichi
Scivoli: rampa carrabile di accesso al piano seminterrato
Finanziamento esistente: immobile in portafoglio di istituto di credito
Nelle vicinanze
Campi da Calcio
Trasporti Pubblici
Bar
locali commerciali
Mappa immobile
Condividi
Ultimo aggiornamento 19-08-2025





























