Locale commerciale in Vendita a Giulianova
Zona: Colleranesco
Classe energetica
D
Ex sexy shop
in palazzina di recente costruzione nel 2006 realizzata in 1^ fila su Strada statale e a 2.500 mt. da uscita autostradale
vetrina con lato trasversale rispetto alla strada con limitata visibilità
altezza interna 350 cm.
impianto di riscaldamento e raffrescamento per mezzo di termoconvettori comandati da caldaia
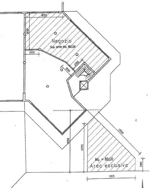
ampio parcheggio pubblico e condominiale ed area parcheggio privata di 90 mq.
immobile in portafoglio di Istituto di credito
Informazioni immobile
Codice: 3643
Contratto: Vendita
Tipologia: Locale commerciale
Regione: Abruzzo
Provincia: Teramo
Comune: Giulianova
Zona: Colleranesco
Prezzo: € 156.000
Totale mq: 163 mq
Bagni: 1
Locali: 1
Stato conservazione: Buono
Mq coperti: 163 mq
Numero Vetrine: 1
Riscaldamento: Autonomo
Arredato: Non arredato
Posizione: Strada ad alto traffico
Caratteristiche
Finanziamento esistente: immobile in portafoglio di Istituto di credito
lavori necessari: pulizia interna
Nelle vicinanze
Palestre
Trasporti Pubblici
Asilo
Scuole Elementari
Bar
locali commerciali
Mappa immobile
Condividi
Ultimo aggiornamento 02-07-2025













