Capannone in Vendita a Colonnella
Zona: Bonifica del Tronto
4.411 mq
Classe energetica
F
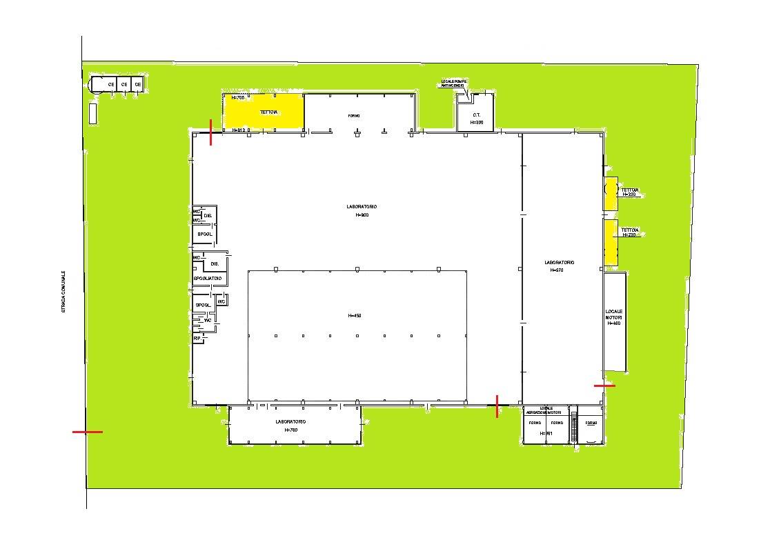
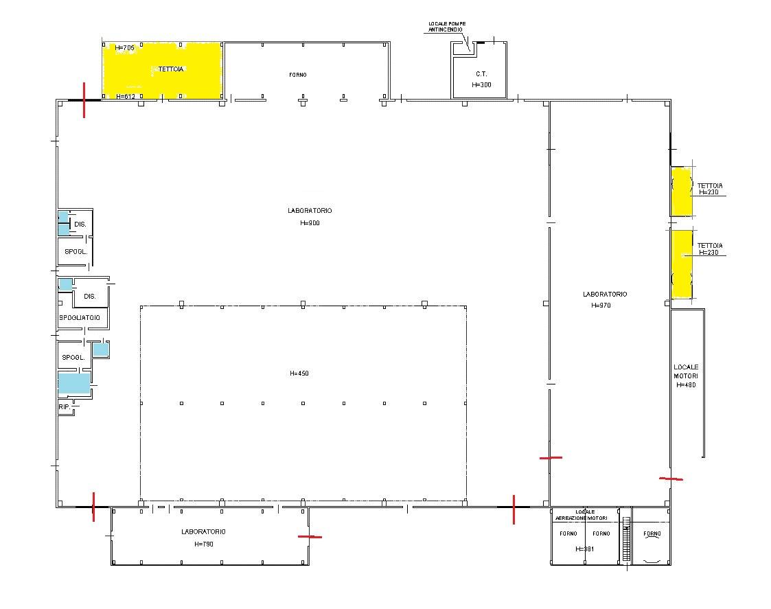
Capannone industriale
realizzato nel 2002 con struttura prefabbricata in c.a. e ubicato a 10 km. da uscita autostradale in una zona industriale completamente urbanizzata
altezza interna 9,00 mt.
tettoie per 145 mq.
4 portelloni di accesso
corte di pertinenza di 3.949 mq. completamente recintata con due accessi carrabili ed uno pedonale
immobile in portafoglio di istituto di credito
Informazioni immobile
Codice: 3319
Contratto: Vendita
Tipologia: Capannone
Regione: Abruzzo
Provincia: Teramo
Comune: Colonnella
Zona: Bonifica del Tronto
Prezzo: € 1.750.000
Totale mq: 4.411 mq
Stato conservazione: Discreto
Caratteristiche
Area esterna: 3949 m²
Recinzione: corte di pertinenza di 3.949 mq. completamente recintata con due accessi carrabili ed uno pedonale
Finanziamento esistente: immobile in portafoglio di istituto di credito
Nelle vicinanze
Trasporti Pubblici
Mappa immobile
Condividi
Ultimo aggiornamento 18-09-2024


















